DESIGNS PORTFOLIO
Design
Our expert design team includes designers and technicians with training in landscape architecture and construction, ecological restoration, and horticulture in addition to years of field experience to guarantee a landscape fitting both the site and its users. We focus on training, education, and process because the importance of a landscape master plan is impossible to overstate. Without a clear, well-reasoned plan it is impossible to create a sustainable outdoor living place without incurring wasteful missteps and the associated environmental and financial costs.
Designing is not a simple task. A successful design must not only include the appropriate elements, but also organize them properly for maximum functional, aesthetic, and ecological value. Experience, training, forethought, and a proven process are all crucial to designing a sustainable outdoor living environment.
These designs are recent examples that show our commitment to thoughtful design and the environment as well as our ability to work with a variety of clients and project types- whether it be residential, small commercial, full site, partial site, or front or back yard. If you are interested in learning more we would be happy to discuss the design rationale as well as how our installation teams brought these designs to reality.
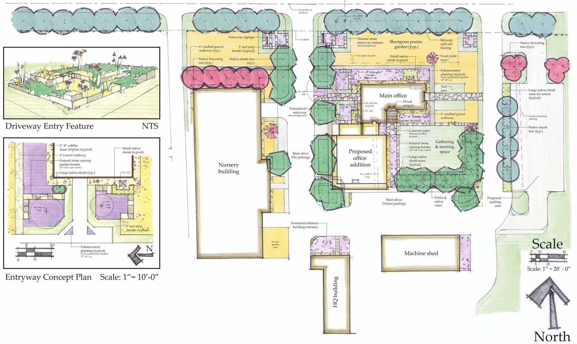
AES Office Entryway
Monroe, WI

































